СВАДЕБНЫЙ БЛОГ «БЕРЕГА ЖЕЛАНИЙ»

Обзор панорамного зала с террасой

Просторная ивент-площадка, идеально подходящая для свадьбы — деревянная терраса прямо у воды, окружение из зеленых раскидистых деревьев и минималистичный интерьер внутри, в котором легко реализовать любую тематику праздника.
На сколько человек рассчитана площадка?
В панорамном зале будет комфортно при посадке не более 60 человек. Если планируете использовать эту площадку под фуршет, то можно увеличить количество гостей до 100 персон.
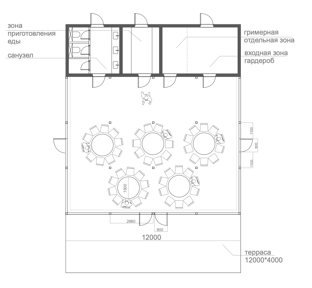
Что есть внутри?
Большие панорамные окна, много света и спокойный интерьер. В зале мы предусмотрели три технических помещения – туалет для гостей, зона для приготовления еды и гримерная зона, совмещенная с гардеробом. Площадь зала – 120 м2, а высота потолков здесь 3 метра.
Как выглядит зал?
Внутри зала можно установить любой декор, свет или звуковое оборудование. Интерьер очень спокойный и лаконичный, чтобы любая декорация и тематика вашей свадьбы могла быть воплощена в жизнь.
Большая деревянная терраса у воды:
72 м2 открытого пространства – отлично подходит для проведения фуршетов, вечерних танцев под звездным небом, выездных регистраций и фотозон. Вид с террасы прямо на Истринское водохранилище!
Что входит в стоимость аренды?
  • аренда зала с 8.00 до 23.00
  • аренда прилежащей к площадке инфраструктуры,
  • аренда банкетной мебели,
  • текстиль и сервировка,
  • клининг до и после мероприятия
  • персонал: официанты 1 на 15 гостей, банкетный менеджер, менеджер мероприятия со стороны площадки.

Монтажные работы по подготовке площадки можно начинать не ранее 8 утра в день мероприятия (обязательно предварительно договориться с площадкой и прописать тайминг привоза инвентаря, оборудования и тайминг монтажа).

Площадки и залы для проведения мероприятий предполагают возможность установки технического оборудования: статичного оснащения не имеется, все оборудование устанавливается по предварительному запросу и согласованию.
Как провести свою свадьбу именно здесь?
Напишите нашим менеджерам или оставьте заявку ниже – мы расскажем о всех условиях аренды и свободных датах на это лето. У нас можно забронировать экскурсию по территории или просто приехать в ресторан без предварительного бронирования и прогуляться по территории. Мы вас очень ждем! 😊